For Sale: Office, City Center, Limassol, Cyprus FC-61845
Details:
City:Limassol, City Center
Type:Office
Built year: 2027
Covered: 77 m2
Toilets: 1
New project in the city center of Limassol. Located on well known commercial road, literally in the city center of Limassol, surrounded by clinics, institutes, schools, offices, and shops.
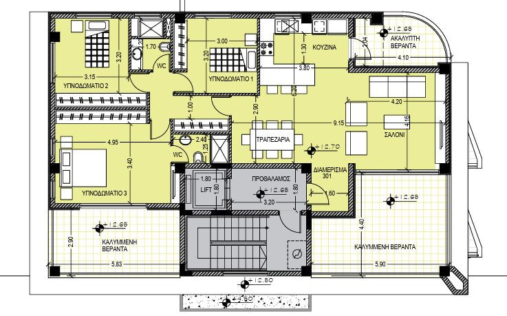
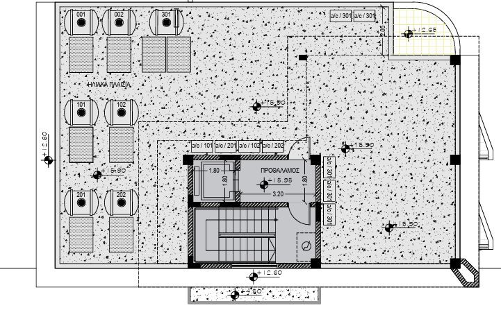
The project consists of a three story building with offices in all floors and one stunning penthouse with roof garden.
Key Features
- Certificate of Energy Efficiency A
- Covered parking for each apartment
- Storage room for each apartment
- Video entry phone on the main entrance
- Double glazed thermal windows
- Double Glazed Glass on the balconies
- High quality electric system (lift)
- High quality sanitary ware chosen by customer
- Pressurised water system
- Electric heating provision
- Provisions for wall mounted air condition split units
- Installation of electric shutters in the bedrooms
- Installation of photovoltaic system on the roof
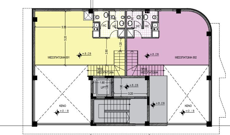
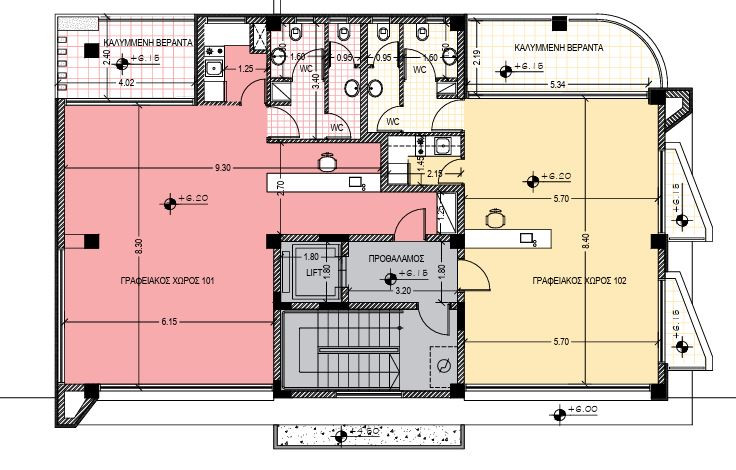
AVAILABILITY
Office 1st floor
- Covered area 65 sq.m.
- Covered veranda 12 sq.m.
- Price 395.000 euro plus VAT
Office 2nd floor
- Covered area 65 sq.m.
- Covered veranda 12 sq.m.
- Price 415.000 euro plus VAT
There are more offices available in this project.
Status: under construction
Completion date: Q4 2027
Additional information:
- Plus VAT
Loading map...
Send a request and we will text or call you back!
Previously viewed properties
More articles
Are you interested in Cyprus property?
Leave your request. We will contact you shortly to clarify the details
Consultation
Leave your contact details. We will contact you shortly and provide a free consultation










