For Sale: Commercial land, Agios Ioannis, Limassol, Cyprus FC-61574

Details:
City:Limassol, agios-ioannis
Type:Commercial
Plot: 592 m2
Coverage Ratio: 140%
Build Density: 50%
An excellent investment opportunity in one of Limassol’s most strategic commercial locations. This commercial plot includes an existing building and offers strong redevelopment potential, making it ideal for investors or developers seeking mixed-use possibilities.
A town planning permit is expected shortly for a new development comprising shops, offices, and residential units. Architectural plans and 3D visualizations for the proposed project are already available.
Property Details
- Plot Area : 592 m²
- Type: Commercial plot with existing building
- Existing Structure: Commercial building
- Year of Construction: 1980
- Planning Zone: Εβ4 (Commercial)
- Density: 140%
- Coverage: 50%
- Maximum height: 4 floors
- Total covered area 1,962 sq.m.
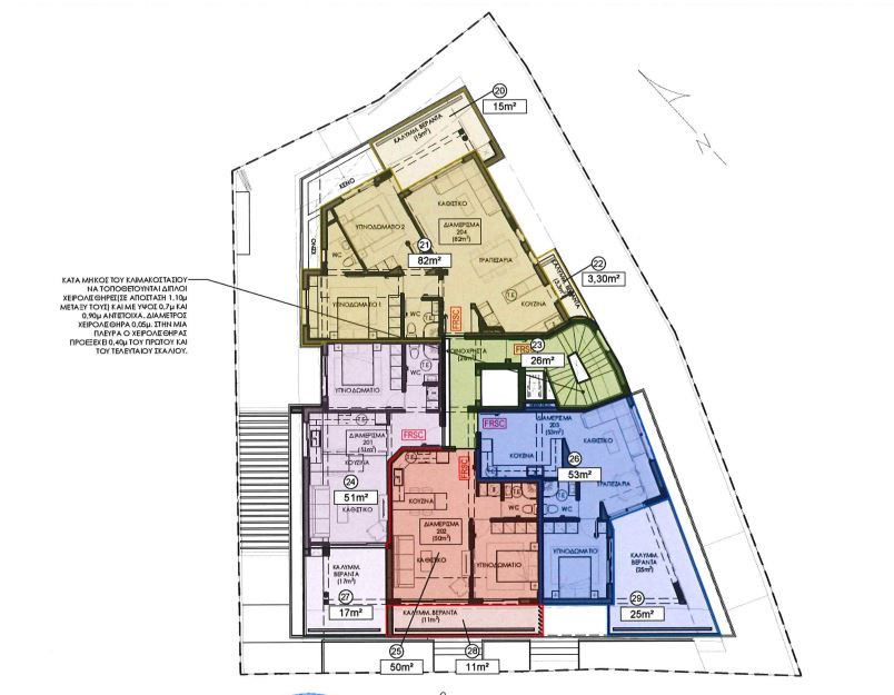
Building Layout
Basement: 455 m²
Ground Floor – Shops:
- Shop 01: 75 m² + 37 m² mezzanine
- Shop 02: 84 m² + 42 m² mezzanine
First Floor – Offices:
- Office 101: 101 m²
- Office 102: 119 m²
Second Floor – Apartments:
- Three 1-bedroom apartments: 51 m², 50 m², 53 m²
- One 2-bedroom apartment: 82 m²
Third Floor – Apartments:
- Two 2-bedroom apartments: 86 m² & 89 m²
- Roof storage / laundry areas: 32 m² + 32 m²
Key Highlights
- Prime central Limassol location
- Excellent access to main roads
- Strong investment and redevelopment potential
- Suitable for retail, office, and residential use
- Architectural plans and 3D visuals available
Send a request and we will text or call you back!
Previously viewed properties
More articles
Are you interested in Cyprus property?
Leave your request. We will contact you shortly to clarify the details
Consultation
Leave your contact details. We will contact you shortly and provide a free consultation


