For Sale: Apartments, Asomatos, Limassol, Cyprus FC-61745
Details:
City:Limassol, Asomatos
Type:Apartment
Built year: 2027
Bedrooms: 1
Bathrooms: 1
Covered: 54 m2
Parking spaces: 1
Toilets: 1
New residential project in Asomatos area, Limassol. Ideally located just 500 meters from the renowned City of Dreams Mediterranean Resort & Casino, My Mall, and the well- known Limassol Greens Golf Resort.
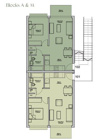
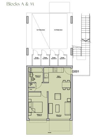
The project consists of 11 blocks of two-bedroom apartments and 2 blocks of one-bedroom apartments.
Key Features
- Aluminum framed doors and window
- High quality sanitary ware and mixers and accessories
- Provision for Air conditioning units cooling/heating
- Photovoltaic system for the common areas
- Entrance video phone
- High quality construction
- Ideal for own use or investment
- Covered parking
- Storage room
AVAILABILITY
Apartment GROUND floor
- Internal area 50 sq.m.
- Covered veranda 4,35 sq.m.
- Uncovered veranda 8,65 sq.m.
- Price 218.400 euro plus VAT
Apartment 1st floor
- Internal area 50 sq.m.
- Covered veranda 4,35 sq.m.
- Price 204.750 euro - 210.000 plus VAT
There are more apartments available in this project.
Status: Off plan
Additional information:
- Plus VAT
Loading map...
Send a request and we will text or call you back!
Similar properties
Previously viewed properties
More articles
Are you interested in Cyprus property?
Leave your request. We will contact you shortly to clarify the details
Consultation
Leave your contact details. We will contact you shortly and provide a free consultation











